
Bayside
Designed to frame the view from every room.
Plan Overview
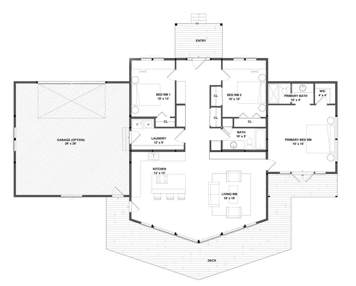
The Bayside is a single-story home that lives much larger than its footprint. The dramatic front of the structure is shaped like a ship's bow — floor-to-ceiling glass that floods the great room, dining area, and kitchen with light and views. A dedicated wing provides a private primary suite retreat, balancing openness with privacy. One of Lindal's most iconic designs.
Ideal for a waterfront, hillside, or view lot.
Specifications
- Lindal Package Starting At
- $270,000 USD
- Bedrooms
- 3
- Bathrooms
- 2
- Primary Bedroom
- Main Level
- First Floor
- 1,621 SF
- Collection
- Lindal Elements
Gallery
Floor Plan
Additional size variations available — ask Justin about options for your lot.
Interested in the Bayside?
Come ready to talk about your land, your budget, and your timeline. Justin will take it from there.
Schedule a Discovery Call