
Cedar
Post-and-beam character with a contemporary edge.
Plan Overview
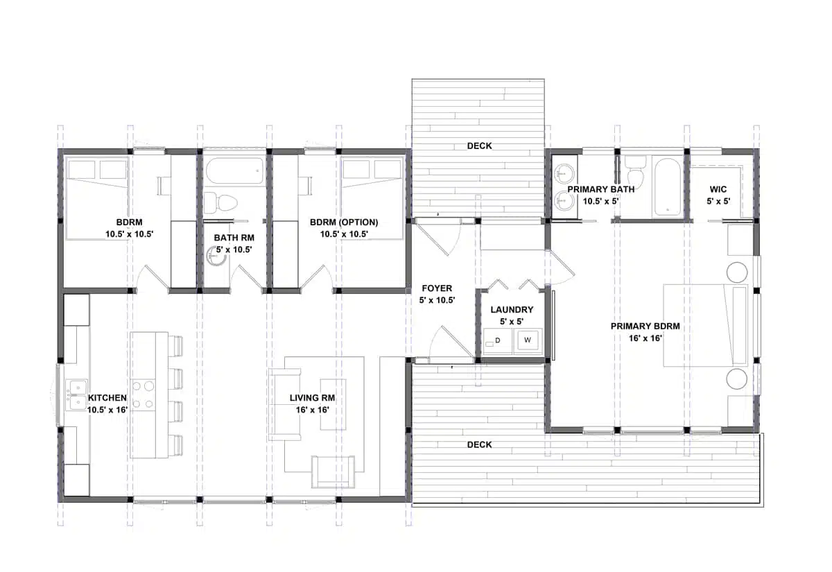
The Cedar is one of Lindal's most popular and flexible small modern home designs. Two bedrooms and an office share a compact one-level layout that feels far more spacious than its footprint suggests. Exposed post-and-beam structure gives the home its character, while clean lines and modern proportions keep everything feeling fresh and current.
Ideal for a wooded or natural setting.
Specifications
- Lindal Package Starting At
- $245,000 USD
- Bedrooms
- 2 + Office
- Bathrooms
- 2
- Primary Bedroom
- Main Level
- First Floor
- 1,283 SF
- Collection
- Lindal Elements
Gallery
Floor Plan
Additional size variations available — ask Justin about options for your lot.
Interested in the Cedar?
Come ready to talk about your land, your budget, and your timeline. Justin will take it from there.
Schedule a Discovery Call