
Teton
Mountain-ready design with an open soul.
Plan Overview
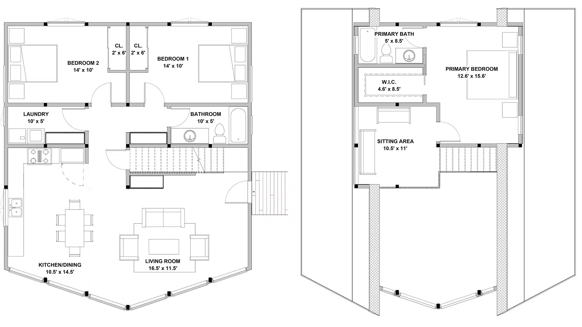
The Teton is a flagship of the Lindal Classic collection — a best-selling prow-front design celebrated for its towering glass wall that projects into the landscape, offering panoramic views from the expansive great room and dining area. Varying roof pitches create a warm, intimate feeling inside while the architecture makes a bold statement from the outside. Three bedrooms across two levels provide room for the whole family.
Ideal for a mountain, hillside, or view lot.
Specifications
- Lindal Package Starting At
- $220,000 USD
- Bedrooms
- 3
- Bathrooms
- 3
- Primary Bedroom
- Main Level
- First Floor
- 1,302 SF
- Second Floor
- 538 SF
- Collection
- Lindal Classic
Gallery
Floor Plan
Additional size variations available — ask Justin about options for your lot.
Interested in the Teton?
Come ready to talk about your land, your budget, and your timeline. Justin will take it from there.
Schedule a Discovery Call